Easy Drain EDFTW1000 Fixt 50 Wall afvoergoot 100x9.8x2cm zij-uitloop 109mm RVS (OUTLET)
Merk:
Easy Drain EDFTW1000 Fixt 50 Wall afvoergoot 100x9.8x2cm zij-uitloop 109mm RVS (OUTLET)
Special Price € 170,00 incl. BTW Regular Price € 263,00 incl. BTW
Easy Drain EDFTW1000 Fixt 50 Wall afvoergoot 100x9.8x2cm zij-uitloop 109mm RVS
Algemeen
Merk
Easy Drain
Serie
Outlet
Levertijd
2 tot 3 werkdagen
Kleur
rvs geborsteld
Specificaties
Categorie OUTLET
Outlet douchegoten
Omschrijving
Easy Drain Fixt 50 Wall afvoergoot 100x9.8x2cm zij-uitloop 109mm RVS
Specificaties:
Breedte drain: 98 mm + 17 mm
Hoogte: 20 mm
Inbouwdiepte incl. sifon: 109 mm
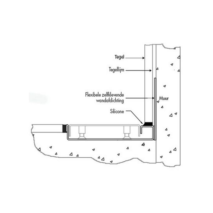
De Easy Drain Fixt 50 Wall is speciaal ontwikkeld voor toepassing onder de wandtegel met een flexibele zelfklevende wandafdichting.
Easy Drain Fixt 50 Wall heeft een aansluiting van 50 mm en is voorzien van een reinigbaar, uitneembaar waterslot voor een eenvoudige toegang tot de afvoerbuis.
In de verpakking is een Fixt 50 incl. rooster, overschuifmof, verankeringsclips, aardklem, stelvoeten en flexibele afdichting bijgesloten.
Afvoercapaciteit:
Positie A : ca. 48 l/min
















